O Refúgio da Luz: Halcyon House

Um santuário arquitetônico que celebra a harmonia entre espaço, natureza e convivência.

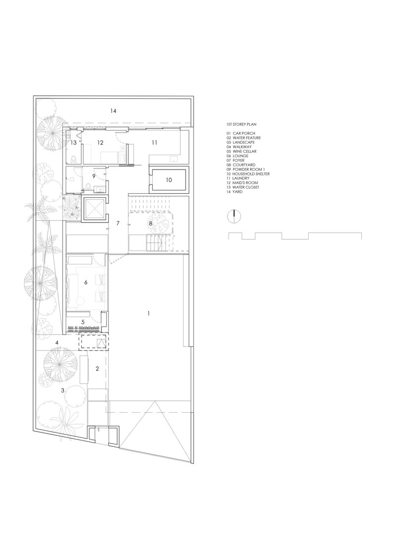
Halcyon House / Ming Architects - Image 1 of 19

Em meio a um cenário de possibilidades infinitas, ergue-se a Halcyon House, uma morada que transcende o conceito tradicional de habitar para se tornar um poema arquitetônico em diálogo constante com a natureza e a luz. Projetada com a intenção de abrigar uma família em crescimento e proporcionar um ambiente acolhedor para amigos, esta residência se destaca pela sua sala de estar de volume duplo elevado, uma escultura espacial que se revela vastamente aberta, convidando o olhar a subir, a explorar e a se perder nas alturas. A experiência de adentrar a Halcyon House é como mergulhar em um universo onde o espaço e o vazio se entrelaçam em uma dança harmônica. A escadaria, mais do que um simples caminho vertical, é a protagonista de uma narrativa visual que guia os movimentos e as emoções de quem percorre seus degraus com delicadeza. Ela se desdobra em um jogo de sombras e luzes, revelando como o tempo e a arquitetura dialogam em um concerto silencioso. O interior da casa, banhado por uma luz suave e difusa, desperta os sentidos para uma paleta de materiais que evocam serenidade e acolhimento. Mármores polidos, madeiras cuidadosamente selecionadas e texturas que convidam ao toque criam uma atmosfera onde o luxo não grita, mas sussurra. Cada espaço se conecta intimamente com o exterior, como se as fronteiras entre interior e exterior fossem apenas uma ilusão. Ao contemplar o jardim circundante, percebe-se que a natureza não é meramente um pano de fundo, mas um ator protagonista que participa ativamente da narrativa arquitetônica. As janelas amplas emolduram a paisagem, permitindo que a luz natural pinte o interior com nuances que mudam ao longo do dia, transformando a Halcyon House em uma tela viva. Este projeto é mais do que uma casa. É uma meditação sobre a presença e a ausência, um convite à reflexão sobre como habitamos os espaços que nos rodeiam. A Halcyon House não apenas acomoda, mas exalta a vida em todas as suas formas, proporcionando um cenário onde o humano e o natural coexistem em perfeita sinfonia. Ao final, a Halcyon House não se limita a ser uma estrutura de alvenaria e vidro. É um testemunho de que a verdadeira essência do lar reside não apenas nas paredes que nos cercam, mas nos vazios que nos permitem sonhar e nos preencher com a presença intangível da luz e do tempo.

Inscreva-se

Ensaios ocasionais sobre espaço, forma e arquitetura da percepção.