O Refúgio do Beija-flor: Harmonia e Encontro

Uma residência onde o movimento da água encontra a serenidade da convivência familiar

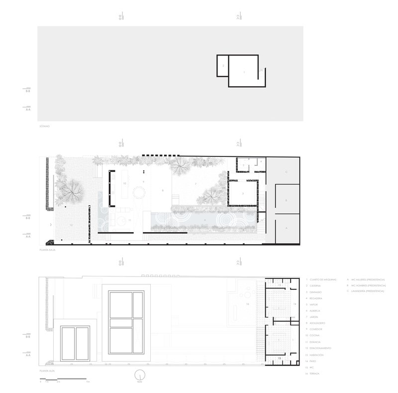
Hummingbird House / Estudio Libre MX - Image 1 of 12

Ao sul da vibrante Cidade do México, um lugar de encontros e celebrações se revela, onde a arquitetura se torna uma dança entre a funcionalidade e a poesia. A Casa do Beija-flor, projetada pelo Estudio Libre MX, emerge como um santuário de interação e lazer, onde o traçado da piscina se impõe como o eixo vital que orquestra o espaço.

Hummingbird House / Estudio Libre MX - Exterior Photography
Hummingbird House / Estudio Libre MX - Exterior Photography

Ao adentrar este refúgio, somos acolhidos por uma atmosfera onde a luz se desdobra em um espetáculo silencioso, refletindo-se nas superfícies cuidadas dos materiais que compõem o cenário. A madeira, o concreto e o vidro se harmonizam com a paisagem, criando um diálogo entre o interior e o exterior que convida ao repouso e à contemplação.

Hummingbird House / Estudio Libre MX - Image 2 of 12
Hummingbird House / Estudio Libre MX - Image 2 of 12

O conceito de espaço aqui transcende a mera soma de ambientes, transformando-se em um palco para o fluxo natural da vida familiar. A piscina, com suas águas cristalinas, não é apenas um elemento estético, mas um convite ao movimento e à introspecção. Ela se estende como uma artéria, conectando os diferentes núcleos da casa e tecendo uma narrativa de união e continuidade.

Hummingbird House / Estudio Libre MX - Exterior Photography, Wood, Patio, Chair, Garden, Courtyard
Hummingbird House / Estudio Libre MX - Exterior Photography, Wood, Patio, Chair, Garden, Courtyard

Cada detalhe da residência foi meticulosamente pensado para amplificar a experiência sensorial dos habitantes. As janelas amplas permitem que a luz solar dance pelos interiores, criando sombras e texturas que mudam ao longo do dia, como uma orquestra sinfônica de luz e sombra. A escolha dos materiais ecoa uma reverência pela simplicidade e pela intemporalidade, onde cada peça parece contar uma história de equilíbrio e harmonia.

Hummingbird House / Estudio Libre MX - Interior Photography, Wood, Chair, Beam
Hummingbird House / Estudio Libre MX - Interior Photography, Wood, Chair, Beam

A Casa do Beija-flor não é apenas uma residência, mas um manifesto arquitetônico que celebra a essência do viver em comunidade. Ao promover um ambiente propício para a interação humana, ela se torna um espaço onde memórias são construídas e laços são fortalecidos. O projeto nos convida a refletir sobre o papel do espaço na nossa experiência de vida, questionando como a arquitetura pode ser uma extensão de nossos anseios mais profundos por conexão e pertencimento.

Hummingbird House / Estudio Libre MX - Exterior Photography, Brick, Concrete, Garden, Courtyard
Hummingbird House / Estudio Libre MX - Exterior Photography, Brick, Concrete, Garden, Courtyard

Neste ambiente, o vazio não é ausência, mas potencial. É o espaço entre as notas que cria a melodia, o silêncio que permite a escuta. Assim, a Casa do Beija-flor nos lembra que, em meio à agitação do cotidiano, a verdadeira riqueza reside na simplicidade do encontro e na beleza do instante presente.

Hummingbird House / Estudio Libre MX - Exterior Photography, Wood, Patio, Chair, Beam, Garden
Hummingbird House / Estudio Libre MX - Exterior Photography, Wood, Patio, Chair, Beam, Garden