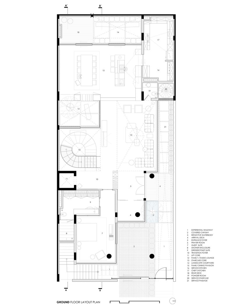
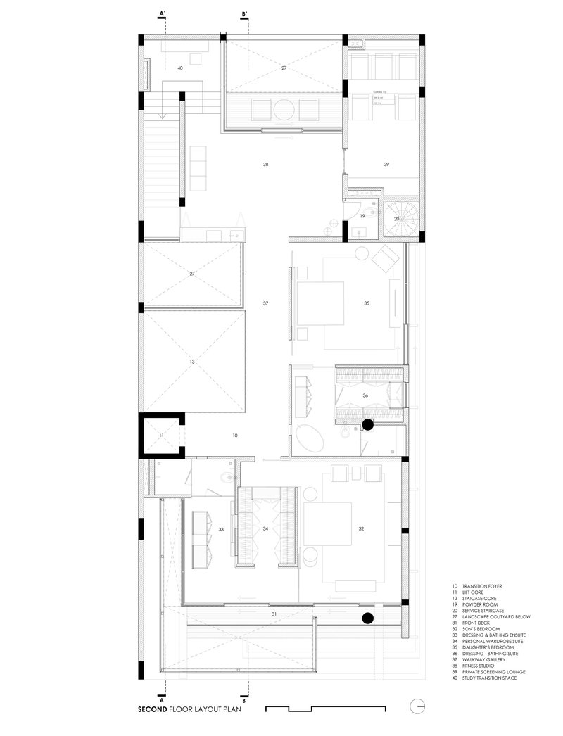
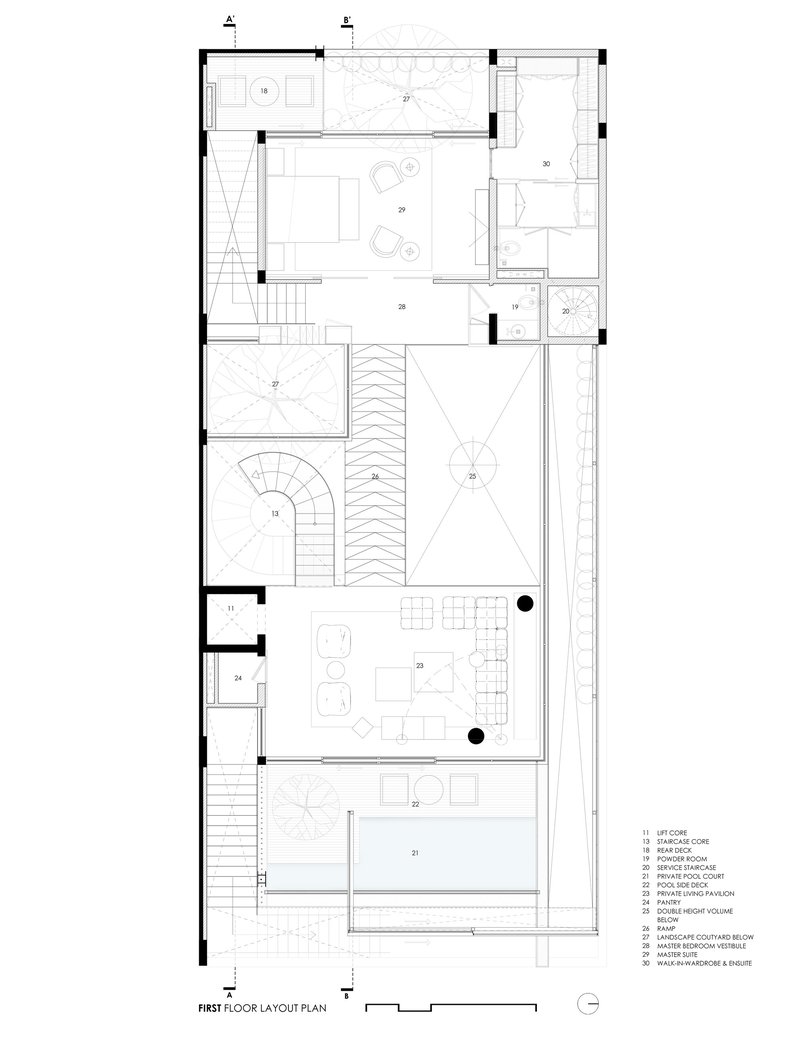
O Sussurro Silencioso da Arquitetura

Uma viagem sensorial pela residência onde o espaço e a luz dançam em harmonia.

Project Residence BB 214 / Minimalist Architecture & Design Studio - Exterior Photography

No mundo contemporâneo, onde a cacofonia das formas muitas vezes invade o espaço, a Residência BB 214 emerge como um oásis de serenidade arquitetônica. Concebida pelo Minimalist Architecture & Design Studio, esta residência é uma ode à presença silenciosa, uma manifestação de arquitetura que sutilmente se revela através de proporções cuidadosas, luz suave e uma contenção deliberada.

Project Residence BB 214 / Minimalist Architecture & Design Studio - Image 6 of 31
Project Residence BB 214 / Minimalist Architecture & Design Studio - Image 6 of 31

Adentrar a Residência BB 214 é como mergulhar em um espaço onde o tempo desacelera. As paredes, despojadas de ornamentação desnecessária, se erguem como guardiãs do vazio, permitindo que a luz natural desenhe sombras que dançam ao longo do dia. Aqui, cada feixe de luz é um artista, esculpindo volumes e destacando a textura dos materiais escolhidos com precisão quase cirúrgica.

Project Residence BB 214 / Minimalist Architecture & Design Studio - Interior Photography, Stairs
Project Residence BB 214 / Minimalist Architecture & Design Studio - Interior Photography, Stairs

A experiência de caminhar por este espaço é um diálogo constante entre o indivíduo e a arquitetura. O piso de madeira clara sob os pés oferece uma sensação de calor e acolhimento, enquanto as superfícies lisas das paredes refletem um minimalismo que não é frio, mas sim contemplativo. O ar parece respirar suavemente através dos cômodos, como se cada espaço estivesse aguardando para ser preenchido por momentos de vida cotidiana.

Project Residence BB 214 / Minimalist Architecture & Design Studio - Interior Photography, Living Room, Lighting, Chair, Glass
Project Residence BB 214 / Minimalist Architecture & Design Studio - Interior Photography, Living Room, Lighting, Chair, Glass

O design da Residência BB 214 desafia a noção tradicional de luxo. Em vez de ostentar, opta por uma simplicidade que celebra o essencial. Os materiais são escolhidos não por sua extravagância, mas por sua capacidade de criar uma conexão visceral com aqueles que habitam o espaço. O concreto polido, a madeira natural e o vidro diáfano se unem para formar um refúgio que é tanto um lar quanto um santuário.

Project Residence BB 214 / Minimalist Architecture & Design Studio - Interior Photography, Living Room, Glass, Chair, Balcony
Project Residence BB 214 / Minimalist Architecture & Design Studio - Interior Photography, Living Room, Glass, Chair, Balcony

Em cada canto da residência, a luz desempenha o papel de protagonista. As janelas estrategicamente posicionadas não apenas emolduram a paisagem externa, mas também permitem que a luz natural se torne uma presença constante e vital. É essa dança de luz e sombra que confere à residência uma qualidade quase etérea, onde o tempo se dissolve e o espaço se torna uma extensão do próprio ser.

Project Residence BB 214 / Minimalist Architecture & Design Studio - Image 5 of 31
Project Residence BB 214 / Minimalist Architecture & Design Studio - Image 5 of 31

A Residência BB 214 nos convida a refletir sobre o verdadeiro significado de habitar um espaço. Ela nos lembra que a essência da arquitetura não reside na grandiosidade, mas na capacidade de criar ambientes que nutrem a alma e sustentam o cotidiano. Ao permitir que o espaço, a luz e o material falem por si, a residência se transforma em um testemunho da beleza que reside na simplicidade intencional.

Project Residence BB 214 / Minimalist Architecture & Design Studio - Exterior Photography
Project Residence BB 214 / Minimalist Architecture & Design Studio - Exterior Photography

Assim, a Residência BB 214 não é apenas um projeto arquitetônico, mas uma meditação sobre o poder do silêncio e da presença. É uma afirmação de que, em um mundo onde a arquitetura frequentemente grita por atenção, ainda há lugar para aqueles que apreciam a linguagem sutil do design que sussurra.

Project Residence BB 214 / Minimalist Architecture & Design Studio - Image 8 of 31
Project Residence BB 214 / Minimalist Architecture & Design Studio - Image 8 of 31

Inscreva-se

Ensaios ocasionais sobre espaço, forma e arquitetura da percepção.