A Poética da Presença: A Casa Flor

Uma transformação encantadora onde o passado encontra o presente em um abraço harmonioso.

Flower House

No âmago de San Francisco, onde a urbe vibra em consonância com o oceano, ergue-se a Casa Flor, um testemunho eloquente de como o passado e o presente podem coexistir em uma dança delicada. Este refúgio familiar, incrustado na estrutura de uma antiga loja de esquina, celebra a herança arquitetônica ao invés de obliterá-la. Sob a visão perspicaz da Craig Steely Architecture, o edifício foi reimaginado, não em subserviência ao passado, mas como um diálogo contínuo entre o que foi e o que está por vir.

Flower House
Flower House

Ao adentrar esse espaço, o visitante é imediatamente envolto por uma sensação de continuidade temporal. A luz, filtrada através de janelas generosas, banha as superfícies com um brilho suave, esculpindo sombras que dançam ao longo do dia. É um espaço que acolhe e transforma, onde cada detalhe foi meticulosamente pensado para ressoar com a essência da vida familiar moderna.

Flower House
Flower House

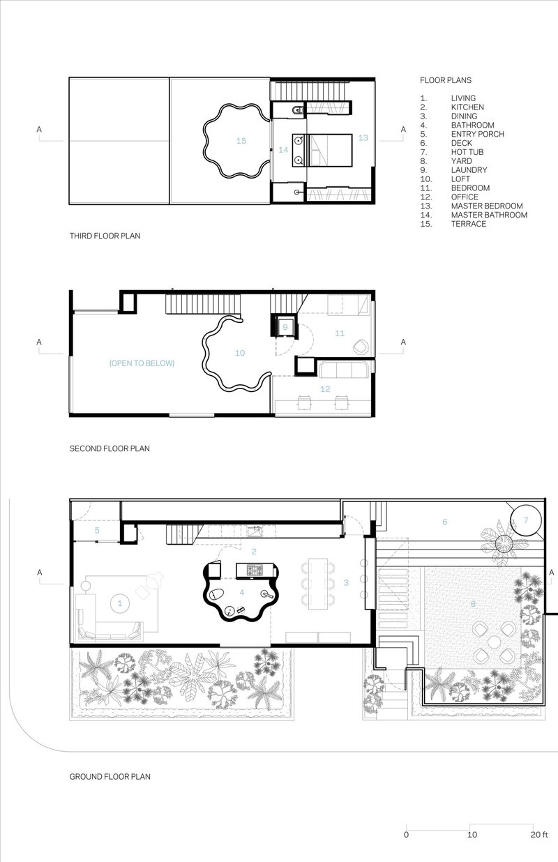
No coração da Casa Flor, uma torre em forma de flor se ergue, livre e imponente. Este elemento central não apenas demarca o espaço, mas também serve como um ponto de convergência, em torno do qual a vida doméstica se desenrola. A planta aberta permite que o olhar e o espírito vaguem sem restrições, promovendo uma sensação de liberdade e conexão.

Flower House
Flower House

A seleção de móveis e arte, curada pelo Studio Ahead, complementa a arquitetura com uma sofisticação discreta. Cada peça é escolhida não apenas por sua estética, mas também por sua capacidade de dialogar com o espaço. Assim, a Casa Flor não é apenas uma residência, mas uma galeria viva onde o cotidiano e o extraordinário se encontram.

Flower House
Flower House

O projeto foi concluído em 2023, e as fotografias de Darren Bradley capturam a essência da realização. As imagens revelam um espaço que é ao mesmo tempo íntimo e expansivo, uma ode ao potencial da arquitetura de transformar não apenas edifícios, mas também vidas.

Flower House
Flower House

Este projeto não é apenas uma intervenção física no tecido urbano, mas uma declaração filosófica sobre o valor do espaço e do tempo. A Casa Flor desafia a noção de que o novo deve apagar o velho, propondo, em vez disso, uma coexistência harmoniosa onde o diálogo entre passado e futuro enriquece o presente.

Flower House
Flower House

A Casa Flor é um convite à reflexão. Ela nos impele a considerar nossa própria relação com os espaços que habitamos, a reconhecer que cada parede, cada janela, cada sombra carrega em si histórias que se entrelaçam com as nossas. E assim, a arquitetura transcende o mundano, tornando-se uma arte que fala ao espírito.

Flower House
Flower House

Com a direção editorial de Madeline Brooks na Arch2O, a narrativa da Casa Flor é apresentada ao mundo com clareza e profundidade. A experiência de Madeline na curadoria de conteúdos arquitetônicos resplandece em cada palavra, realçando a importância de projetos que não apenas ocupam espaço, mas que criam significado.

Flower House
Flower House

Em última análise, a Casa Flor não é apenas uma habitação. É um manifesto silencioso, uma celebração da vida em todas as suas complexidades e simplicidades. E assim, ela se estabelece como um marco não apenas na paisagem de San Francisco, mas no imaginário daqueles que têm o privilégio de contemplá-la.

Flower House
Flower House

Inscreva-se

Ensaios ocasionais sobre espaço, forma e arquitetura da percepção.